Продається новий двоповерховий котедж площею 240 м², розташований у закритому кооперативі в районі Дачі Ковалевського (вул. Вільямса, 21).
Земельна ділянка – 3 сотки, є окремий адрес та держакт.
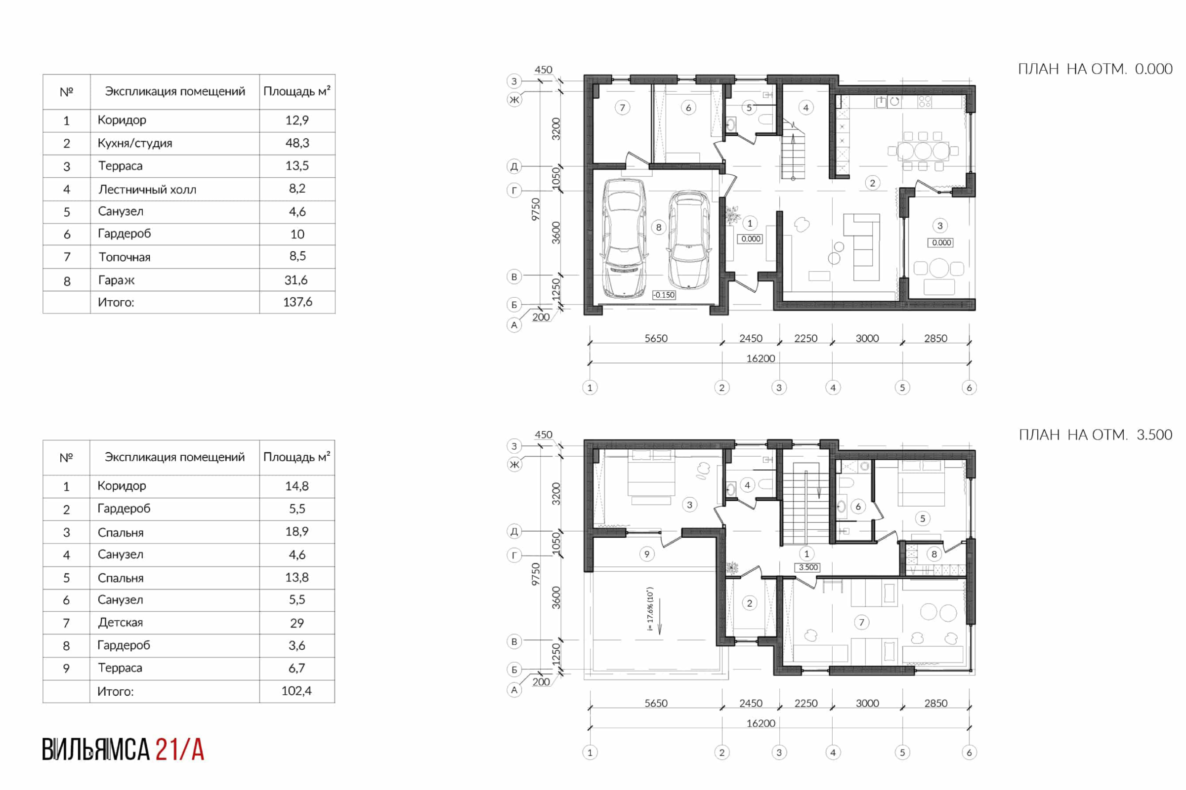
У будинку:
— 3 спальні + гостьова кімната
— кухня-їдальня з виходом на терасу
— тераса на другому поверсі
— гараж на два авто
— вільне планування
Особливості об’єкта:
Енергоефективність класу А
Будинок зведений із застосуванням сучасних технологій і матеріалів преміум-класу. Рівень споживання енергії — як у трикімнатній квартирі в новобудові.
Продумана архітектура та якісне будівництво
Проєкт створено архітекторами з урахуванням потреб сучасної родини. Будівництво велося генпідрядником — виробником будматеріалів. Усі етапи зафіксовані.
Закритий кооператив на 4 будинки
Площа всього комплексу — 18 соток. У кожного будинку своя ділянка з держактом, окремий заїзд, автономність, мінімальна щільність забудови, до моря — 15 хв пішки.
Технічні характеристики:
— Комунікації: електрика (17,5 кВт, 3 фази), міська вода й каналізація
— Опалення: під тепловий насос + фанкойли, тепла підлога, можлива установка газового котла
— Вікна: енергоощадні склопакети з загартованого скла, можливість додаткового бронювання
— Гараж: утеплений, місткий, з можливістю зберігання
— Висота стель: після оздоблення ~3,05 м
— Фасад: готовий, паркан — поєднання дерева та червоної цегли, обробка керамогранітом
— Фундамент: стрічковий, армований
— Є виводи під басейн, полив, кондиціонери, бойлер тощо— Встановлено відеоспостереження по периметру, домофон, освітлення території
Правовий статус:
— Держакти на кожну ділянку
— Стройпаспорти та повідомлення про початок будівництва
— Можливі 2 варіанти угоди:
1. Продаж після введення в експлуатацію
2. Введення на покупця
3 спальні
Гараж на 2 авто
3 сотки землі
- Комфорт міста у форматі приватного будинку
- Економія на комунальних витратах — від 1300 грн/міс
- Функціональність: простір адаптується під потреби (від 2 до 7 кімнат)

Моє резюме:
Чудовий варіант для сім'ї з дітьми через розв'язку, великі кімнати та ігрову зону